傳 真: 0519-88904298
聯系人: 顧經理
手 機: 13092569603
Q Q:497143728
E-mail: 497143728@qq.com
地址: 江蘇省常州市武進區鄭陸鎮焦溪
產品與服務
(一)干法輥壓造粒原理
粉體造粒技術作為粉粒體過程處理的一個最主要分支,隨著環保需求和生產過程自動化程度的提高,其重要性日益彰顯。“粉狀產品顆粒化”已成為世界粉體后處理技術的必然趨勢。干法輥壓造粒具有低能耗、無需另外添加粘合劑、投資較低、能力范圍寬等工藝特點。對粉狀產品進行顆粒的強度加工,其意義主要體現在三大方面:
(1)降低粉塵污染,改善勞動操作條件。
(2)滿足生產工藝要求,如提高孔隙率和比表面積,改善熱傳遞等。
(3)改善產品的物理性能(如流動性、透氣性、堆密度)避免后續操作過程(干燥、 篩分、計量)和使用過程(計量、配料等)出現偏析、脈動、結塊、架橋等不良影響。為提高生產和使用過程的自動化,密閉操作創造了條件。
粉體造粒技術一般有兩種:濕法和干法造粒。干法是在沒有添加粘結劑的情況下,通過擠壓成團或片,然后破碎、篩分成顆粒狀產品。濕法主要是滾筒、園盤、熔融、噴霧及噴漿來造粒。以農業生產為例:上世紀20年代以前,化肥都是以粉狀施用。雖然粉狀肥混合方便,但也存在不少弊端:如離析、結塊、流動性差,在施用過程中易形成粉塵而流失。但隨著造粒技術的不斷發展,這些不利因素正逐步得到解決。
在濕法造粒中,液體粘結劑的毛細管效應所產生的濕強度起著至關重要的作用,在后續的干燥階段,組分間的化學反應和溶解物的結晶作用所產生的固體、晶橋使顆粒成型。這種技術具有代表性的設備有圓磨、滾筒、流化裝置等。無粘結劑的擠壓造粒技術是一個非常有競爭力的技術。一般情況下,顆粒不是靠顆粒間的固體橋架形成,而是靠分子之間的作用力形成的顆粒強度。由于這種作用力距離短,要求顆粒的大小相近,需外部加壓,加壓的方式可以是擠出方式(用直徑固定的孔壓物料)或是擠壓方式(在物料的兩面加壓),如果擠壓發生在兩個反方向旋轉的軋輥之間的輥隙中,這個過程就是干法輥壓造粒。
(二)干法輥壓造粒機工作原理
(1)工作原理:
干粉物料從設備頂部加入,經脫氣、螺旋預壓進入對輥,在對輥極大的擠壓力作用下使物料產生塑性變形而被壓縮成片狀。片狀物料再經過破碎、整粒、篩分等過程,得到顆粒狀產品。擠壓力的大小可根據造粒操作的需要由液壓油缸的壓力進行調節。不同壓力的設定可以得到不同強度的成品顆粒。
(2)產品特點:
1、物料經機械壓力強制壓縮成型,不添加任何潤濕劑,產品純度
得到保證。
2、工藝流程簡短,能耗低,輔助設備及人員配置少。
3、干粉直接造粒,無需后續干燥過程。
4、顆粒強度高,堆積比重的提高較其他造粒方式都更為顯著。
5、操作彈性大,適應范圍廣,顆粒強度的大小可通過液壓力調節。
6、系統密閉循環操作,實現連續生產。
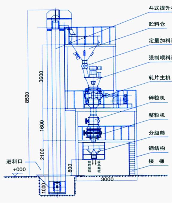
(三)造粒工藝流程和機組結構圖
(1)工藝流程圖

(2)機組結構圖

注:造球機不含碎、整粒機。
(四)型號及主要技術參數
(1)不規格形狀造粒
型號 項目 | SG-240A | SG-360A | SG-500A | SG-600A | SG-650A |
軋輥直徑 (mm) | Φ240 | Φ360 | Φ504 | Φ600 | 650 |
有效使用寬度 (mm) | 80/120/160 | 180 | 300 | 310 | 330 |
軋輥轉速 (r/min) | 5-35 | 3-26 | 14-20 | 12-18 | 10-16 |
強制喂料機功率 (kw) | 4 | 7.5 | 11 | 11 | 15 |
蓄能器預加壓力 (Mpa) | 5 | 6 | 8-10 | 8-10 | 10-14 |
最大成形比壓力 (kn/cm) | 65 | 65 | 70(75) | 70(75) | 70(75) |
粉料軋片厚度 (mm) | 2-6 | 6-8 | 10-12 | 12-14 | 14-16 |
軋片產量 (kg/h) | 800-2,000 | 2,500-3,000 | 6,000-8,000 | 8,000-10,000 | 10,000-12,000 |
機組產量 (kg/h) | 200-600 | 1,000-1,2000 | 2,500-3,000 | 3,000-3,600 | 3,500-5,000 |
成品粒度(mm) | 1-5 | 1-5 | 1-5 | 1-5 | 1-5 |
軋片主機功率 (kw) | 11 | 30 | 75 | 90 | 110 |
裝機總容量 (kw) | 35 | 50 | 109 | 125 | 165 |
外形尺寸(m) (長*寬*高) | 1.85*1.5*1.65 | 2.35*2*2.4 | 3.65*2.25*2.5 | 3.66*2.45*2.7 | 4*2.6*3.3 |
設備總重量 (t) | 7-8 | 10 | 20-21 | 25-26 | 32-33 |
生產周期 | 20 天 | 25天 | 30天 | 60天 | 60天 |

注:1.以上數據均以“硫酸鉀”為例;
2.(75)為“羅布泊鉀肥”造粒數據。
(2)造球
型號 項目 | SG-360B | SG-500B | SG-600B | SG-650B |
軋輥直徑 (mm) | Φ360 | Φ504 | Φ600 | 650 |
有效使用寬度 (mm) | 180 | 300 | 310 | 330 |
軋輥轉速 (r/min) | 16-22 | 14-20 | 12-18 | 10-16 |
強制喂料機功率 (kw) | 7.5 | 11 | 11 | 15 |
蓄能器預加壓力 (Mpa) | 5-6 | 6-10 | 8-10 | 8-12 |
最大成形比壓力 (kn/cm) | 55 | 55 | 55 | 55 |
型球外形尺寸 (mm) | 橄欖球形 大小可定 | 橄欖球形 大小可定 | 橄欖球形 大小可定 | 橄欖球形 大小可定 |
機組型球產量 (kg/h) | 3,000-5,000 | 6,000-8,000 | 8,000-10,000 | 10,000-12,000 |
軋片主機功率 (kw) | 30 | 75 | 90 | 110 |
裝機總容量 (kw) | 42 | 88 | 104 | 129 |
外形尺寸(m) (長*寬*高) | 1.85*1.5*1.65 | 3.65*2.25*2.5 | 3.66*2.45*2.7 | 4*2.6*3.3 |
軋片、碎整粒、電控重量(t) | 8 | 15 | 18 | 25 |
生產周期 | 20 | 30天 | 45天 | 60天 |
注:以上數據以“脫硫石膏”為例。

(五)應用范圍
1、脫硫石膏造粒
脫硫石膏是對含硫燃料(煤、油)燃燒后產生的煙氣進行脫硫凈化處理而得到的一種工業副產品。我國從20世紀90年代開始逐漸在火電廠采用石灰石——石膏濕法對煙氣進行脫硫凈化處理,隨之逐年遞增排放出了大量的固體副產品一脫硫石膏,若對其不加以有效利用,則不僅占用大量土地,還將造成對環境二次污染。盡管脫硫石膏物化特征和天然石膏相同,理論上完全可以代替天然石膏作為原料使用,以減緩天然資源的過度消耗,特別是我國作為水泥生產大國,用作水泥緩凝劑和礦化劑,完全能實現在水泥行業中對脫硫石膏的全部消耗,但是目前大部分脫硫石膏仍主要以堆儲為主,未能被大多數水泥生產企業規模使用,究其原因,主要是脫硫石膏呈濕粉狀,含水率較高,又具有較高的粘性,其在物流過程中極易黏附在運輸設備上。
因此,公司從脫硫石膏生產工藝出發,根據火電廠熱態試驗數據,經多次實驗,開發出使用脫硫石膏代替天然石膏,形成對脫硫石膏的高效利用和循環利用,建立水泥緩凝劑、石膏粉、石膏制品的綜合利用產業鏈。
2、煤粉造粒
煤粉造??煞譃閮煞N:把煤粉造成型煤,大大提高其利用率,降低了環境污染。把煤粉造成2~6mm或其它顆粒范圍用于生產活性炭。因煤的物理特性,基本不溶于水,且煤粉顆粒很細,分子間作用力距離短,這使得煤粉造粒非常困難。而根據干法輥壓造粒理論,不溶于水的物料需加粘結劑,煤粉造粒的最佳粘結劑是煤焦油。干法棍壓造粒把煤粉壓成型煤,型煤塊的范圍8~50mm,甚至更大。把煤粉造成一定范圍的顆粒來生產活性炭的優點是:提高了孔隙率和比表面積,從而大大提高活性炭的吸附能力。因此我們常把煤粉造成2~6mm范圍的不規則顆粒,經活化處理后來生產活性炭和用作冶金原料。
3、肥料造粒
造粒后的肥料物理性能好;物流上能減少一定空間和成本;裝卸時不起塵、長期存放不結塊,流動性好,施肥時易撒布,并可實現飛機播肥,同時還可起到緩釋作用,提高肥料的利用率,增強肥效。此外,品種不同但大小相近的顆粒肥料可實現直接摻混,得到低成本的混配肥,具有和復合肥同樣的肥效。但干法輥壓造粒生產顆粒肥料的唯一缺點是產品的形狀是不規則的顆粒,但是不規則的顆粒形狀對化肥的使用并沒有影響,且可以增加修整工序將顆粒進一步磨圓。用干法輥壓造粒生產的化肥有足夠的強度、粉塵少、不結塊、顆粒尺寸分布范圍窄、流動性好。輥壓造粒生產的肥料在國外的機械施肥中得到了廣泛的應用,證明其顆粒形狀不會成為化肥使用的影響因素。
(1)單一肥干法輥壓造粒
單一肥主要是指:硫酸鉀、氯化鉀、重過磷酸鈣、磷礦粉、托馬斯鋼鐵、硫酸氨、氯化銨、使用硝酸氨、硝酸鉀等粉體。造粒的目的是能得到1~5或2~4mm的能適用于機械施肥的強度較高的化肥顆粒。
技術特點:2002年7月,煙臺公司進口的俄羅斯硫酸鉀,用常規技術無法生產大顆粒。我公司就其產品進行試驗,仍無法成粒。為此,經過一年多的分析、試驗,發現俄羅斯硫酸鉀與曼海姆生產的硫酸鉀有許多不同的特性(其硫酸鉀含量均為50%),主要是細粉含雜不同,粉體顆粒細,在200~400目,粉體越細,含空氣越多,堆積密度越小等。我們根據試驗的參數,對設備進行了多處技術改進,最重要的是增加了脫氣裝置,最后于2003年7月實現了成功造粒。該公司于2003年12月份投產、試機,2004年2月在長春農安開始規模生產。
這標志著我們造粒技術的一大進步,并把該技術推廣到其它物料,如化工行業的白炭黑、抗氧化劑造粒,取得了很大的成功。
氮肥及磷肥的生產同樣有其特點,在此不一一闡述。
(2)氮磷鉀復混肥干法輥壓造粒
復混肥的常規造粒工藝是采用濕法,該法需先把濕的單一原料混合,然后再干燥,能耗較高,大部分能量都用于干燥系統,只有一小部分用于超大顆粒的破碎和產品輸送。對于濕法工藝,干燥過程非常關鍵,因為需將顆粒內部的水分干燥出來,否則水會在儲存過程中遷移到顆粒表面,產生結塊。同時多孔狀的顆粒物料在造粒過程中因重結晶而結殼,有礙于造粒,且干燥過程十分緩慢,操作不便,顆粒強度不高。而采用干法輥壓生產復混肥,避免了干燥這一昂貴的過程,其優點:①降低了生產成本和能耗;②可非常靈活地生產各種配方復混肥;③顆粒強度高。
技術特點:干法輥壓生產復混肥其原理與生產單一肥大致相同,但復混肥造粒有其特殊性,主要原因是復混肥中有氮肥的存在。例如:尿素的熔點較低,且非常容易吸濕;過磷酸鈣在受壓時容易變軟,通稱搖變行為。當復混肥配方中這兩種成分含量較大時,就會給復混肥造粒帶來十分不利的影響。為此,我公司技術人員根據我國國情針對復混肥生產的特點,開發出了一套既能生產單一肥又能生產復混肥的干法輥壓造粒系統,并率先成功地在國內投入使用。
(3)腐植酸有機肥干法輥壓造粒
腐植酸大多為風化煤有機質。風化煤有機質含水分一般在30%左右,其中一大部分為結晶水,還有一部分腐植酸是從植物中提煉,例麥積桿,通過細菌或霉菌發酵而成。而腐植酸復混肥主要由風化煤有機質及氮、磷、鉀混合而成,通常腐植酸復混肥含水量(指游離水)在10%以上。
干法輥壓造粒的特點:不加任何添加劑,造出范圍均勻,強度高(≥30N)的顆粒,要求物料含水分一般要<5%。這就給腐植酸復混肥通過干法輥壓造粒帶來了難題!
根據腐植酸有機肥的特性,我們采用了壓制成型—預破碎—過程冷卻—成型修正—破碎整粒—分級篩分的工藝流程,有效的提高了腐植酸的成型顆粒產量,使顆粒更飽滿、外觀更漂亮。采用新的工藝方法生產比傳統工藝產量提高25%左右。采用機組生產可以做到人員配置合理、能耗降低15%。
4、精細化工和化工原料造粒
加入WTO后,環保要求越來越高,許多化工生產企業為了達到環保要求,改善工人操作環境,降低粉塵污染,都做了大量卓有成效的工作。同時,機械、電子、汽車、建筑和信息等這些與精細化工相關的下游產業,需要品種繁多的精細化工和專用化工產品與之配套,對化工產品進行粒狀化也成為行業發展的趨勢,如造粒后制成的各種添加劑、抗氧化劑、助燃劑、干燥劑、融雪劑以及冶金添加劑等已經被廣泛使用。
由于化工原料的特殊性,及對環境保護的嚴格要求,化工原料造粒與其它行業具有許多的不同點,造粒技術和工藝需要根據其用途變化而變化,二者的造粒成品要求就不一樣。
例:白炭黑 要求:只需成粒,顆粒強度≤8N,速溶性好。
抗氧化劑 要求:顆粒在1~4mm,顆粒強度>18N
(六)機組常規配套設備圖片資料





(七)售后服務
(1)服務宗旨:
我公司本著誠信做人、產品創優、技術創新的宗旨,為廣大用戶提供最周到、最及時、最滿意的售后服務。公司在設備安裝前會到用戶設備安裝地進行實地考察或由用戶提供設備安裝地及廠房圖紙。我公司技術人員將為用戶設計最科學、最人性化的設備安裝施工方案。
(2)服務條款:
凡我公司出售的產品,我公司均派安裝調試技術人員前往安裝、負責調試,為用戶提供最直接周到的服務。
1、培訓:公司技術人員現場指導,讓用戶及時掌握機器性能和應用技術。
2、保修與維護:自用戶驗收之日起,壹年內保修,終身維護;
3、充足的零配件供應和及時的售后服務保證維修時限
4、經驗豐富的維修技術人員根據您的要求幫助解決各種疑難問題
5、細心聆聽用戶意見,不斷改進產品質量

